SPACIOUS & LUXURIOUS PRIVATE HOME ⏐ 4 STUNNING EN-SUITES ⏐ GARDENS & POOL | House in Franschhoek

4 Bedroom House in Franschhoek
Owned by 2 leading designers, this stunning private home with four separate suites, large gardens and secluded swimming pool, is located on a quiet residentialstreetinthe centreof Franschhoek and is within twominutes walking distance of the villagecentre and it's award winning restaurants, galleries and shops.
Exclusive use of the property is offered on a self catering basis, and is an ideal retreat for a family or friends, and a perfect base for exploring the beautiful winelands. Cape Town is an hour by car.
★ Short stays of 1 night are possible with a surcharge, and for long stays we are happy to offer discounted rates.
Please message us directly for rates at kokohousefranschhoek . com
Withmountain views, KoKo House is setwithin a large secludedgarden.
TheHouse can sleep 10comfortably in 4 self contained and air conditioned double Suites (the large South Suite has 2 double beds).
There is also the option to sleep a further two (totalling 12 as a maximum if required) using the Study (with a dedicated shower room & WC) as an additional bedroom.
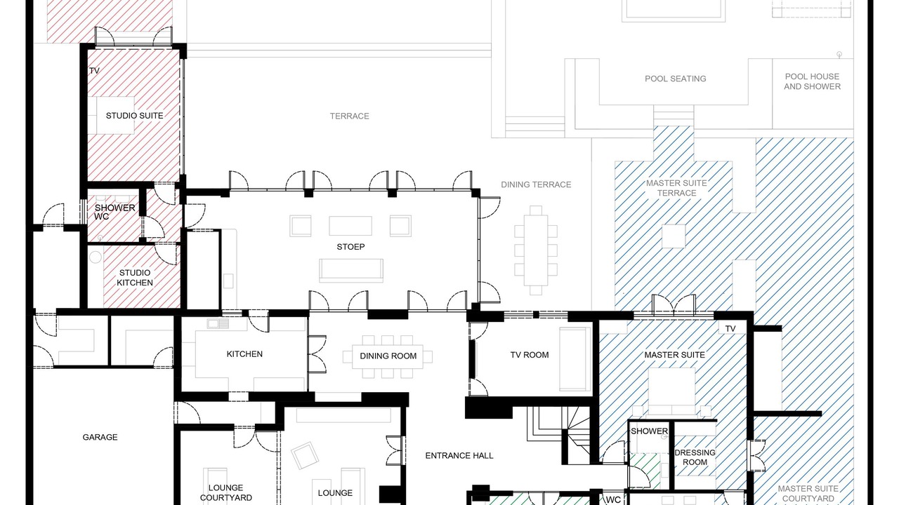
Please see the property layout plan for details.
4 luxurious suites • Lounge with outside courtyard • Kitchen • Dining • TV Room • Study • Stoep • Outside Terraces • Outside dining • 12m salt water pool set in a large secluded garden • Housekeeping • WiFi • Garage Parking • Fully Alarmed.
discounts offered - get in touch directly at kokohousefranschhoek . com .
Short stays of 1 or 2 nights are possible with a surcharge, please message us.
This 4 Bedrooms House provides accommodation with Barbecue/Outdoor Cooking, Internet, Parking, for your convenience. This House features many amenities for guests who want to stay for a few days, a weekend or probably a longer vacation with family, friends or group. The rental House has 4 Bedrooms and 3 Bathrooms to make you feel right at home.
Check to see if this House has the amenities you need and a location that makes this a great choice to stay in Franschhoek. Enjoy your stay in Franschhoek at this House.
Amenities
Facility Overview
-
Air conditioning
-
Heating
-
Toilet paper
-
Towels provided
-
3 bathrooms
-
Hair dryer
-
Soap
-
Shower
-
Bed sheets provided
-
4 bedrooms
-
Dining table
-
Fireplace
-
Living room
-
Wood stove
-
Toaster
-
Cookware/dishes/utensils
-
Ice maker
-
Oven
-
Refrigerator
-
Dishwasher
-
Electric kettle
-
Microwave
-
Stovetop
-
Washing machine and dryer
-
Laundry facilities
-
Near laundromat
-
Beach towels
-
Onsite parking options include a garage
-
Car not required
-
Onsite parking
-
No pets allowed
-
If you have requests for specific accessibility needs, please contact the property using the information on the reservation confirmation received after booking.
-
Smoke-free property
-
Note from host: due to thatched roof - smoking is prohibited
-
Wheelchair accessible
-
Winery tours nearby
-
Hiking nearby
-
Hiking/biking trails nearby
-
Horse riding nearby
-
Mountain biking nearby
-
Fitness facilities nearby
-
Golf nearby
-
Cycling nearby
-
Swimming nearby
-
Birdwatching nearby
-
Stereo
-
Books
-
Video library
-
DVD player
-
TV with cable/satellite service
-
Unit size: 7000 sq ft (650 sq m)
-
Property does not allow children
-
English
-
In the mountains
-
In a rural location
-
In a village
-
Iron/ironing board
-
Local meal delivery service
-
Limited housekeeping
-
Safe
-
Free WiFi
-
Garden
-
Balcony
-
Barbecue grill
-
Outdoor furniture
-
Smoke detector installed (host has indicated there is a smoke detector on the property)
-
Carbon monoxide detector installed (host has indicated there is a carbon monoxide detector on the property)
-
First aid kit
-
Deadbolt lock
-
Fire extinguisher
-
Outdoor pool
-
Private pool
Policies
Extra-person charges may apply and vary depending on property policy government-issued photo identification and a credit card, debit card, or cash deposit may be required at check-in for incidental charges host has indicated there is a carbon monoxide detector on the property host has indicated there is a smoke detector on the property note from host: no parties or events permitted onsite parties or group events are strictly prohibited safety features at this property include a fire extinguisher, a first aid kit, and a deadbolt lock special requests are subject to availability upon check-in and may incur additional charges; special requests cannot be guaranteed this property is managed through our partner, vrbo. you will receive an email from vrbo with a link to a vrbo account, where you can change or cancel your reservation